
.
.
.
山形クラス「 七日町一番街 」7戸
(女子学生専用)
入居補欠者募集中!
.
山形クラス「七日町一番街」入居者募集要項
.
入居補欠者登録について
募集していた部屋は予定人数に達したため、入居補欠者を募集します。
登録期間:申込み受付日から令和8年3月31日まで
入居が決定している方が辞退等した場合に入居する方を入居補欠者として、あらかじめ順位をつけて登録しておくものです。
したがって、登録されてもすぐ入居できるというものではありません。
登録は先着順です。入居決定者が辞退等した時点で登録順位に従ってあっせんの連絡をします。
申込方法は当ページ下部に記載された申込方法に従ってください。
.
入居要件
(1) 学生単身世帯(女子学生)であること、かつ、40歳未満であること。
(2) 入居する学生本人及び住民票謄本に記載されている家族(収入のある方)全員の所得に基づき計算した世帯収入が、基準額(38万7千円/月)以下であること。
世帯収入の求め方は、上記の入居募集要項(PDF)内「世帯収入について」( 4~8ページ )を参照してください。
また、以下のボタンから世帯月収算定のシミュレーションを行うことができます(世帯全員の収入が確認できる書類をご準備ください)。
※シミュレーションにより算定された世帯収入は、入力された数値をもとに算出した参考値であり、正式な世帯収入(申込時の提出書類により算定した額)と異なる場合がありますのであらかじめご了承ください。
.
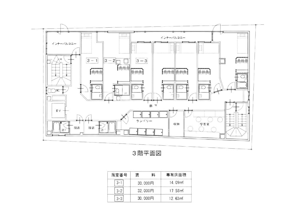
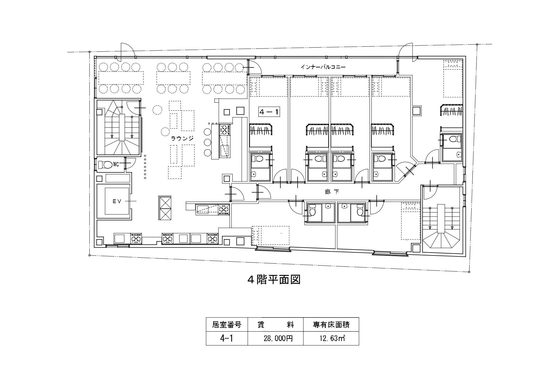
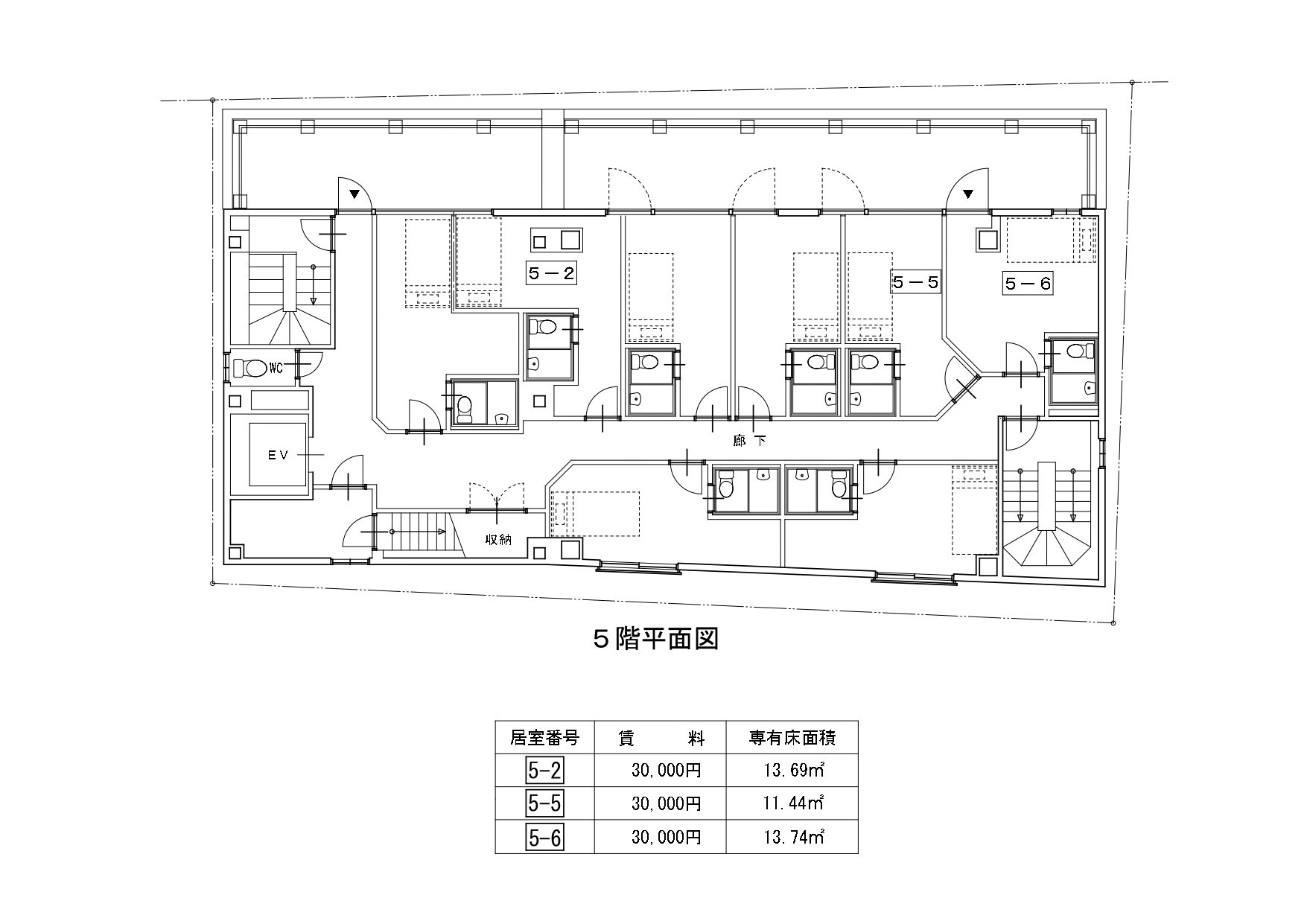
施設の概要
| 名 称 | 山形クラス 「七日町一番街」 |
| 所在地 | 〒990-0043 山形市本町二丁目4-23 |
| 募集室名 |
➀3階3-1,3-2,3-3号室 4階4-1号室 5階5-5,5-6号室 ②5階5-2号室 |
| 入居できる時期 |
➀令和8年3月下旬 ②即入居可 (12月19日までにお申込みの際は、約一ヶ月以内に契約・入居していただきます) |
| 構造 居室形態 | 鉄骨造5階建 3階~5階部分 シェアハウス(共同居住型賃貸住宅) |
| 賃料(月額)※1 | 28,000円~32,000円 |
| 共益費(月額)※2 | 3,000円 |
| 水道光熱費(月額)※3 | 13,000円 |
| 保証料(契約時のみ)※4 | 16,200円 |
| 家財(火災)保険 (契約時・2年分)※5 |
12,420円(参考) |
| 居室の広さ及び主な設備 | 11.44~17.58㎡ (シャワー,トイレ,エアコン, 照明器具, Wi-Fi) |
| 共同利用の設備等 | セキュリティシステム(オートロック等), Wi-Fi,エレベーター,ダイニングキッチン,IHコンロ,ユニットバス,学習室,洗濯乾燥室,駐輪場有,駐車場無 |
| 共用部の備品 | ダイニングテーブル,椅子,照明,冷蔵庫,電子レンジ,洗濯機,乾燥機(コイン式) |
| 交通の利便 | 山形駅まで徒歩18分 |
※1 世帯収入状況により、賃料が半額になる場合があります。詳細は上記の入居者募集要項(PDF)内「10家賃低廉化補助について」をご覧ください。
※2 共益費(月額)には、共用部分の定期清掃費、共用部分の消耗品購入費等が含まれております。
※3 水道光熱費は共用部分を含み、上記の定額となりますが、使用実績に応じて精算するものとします。 また、共益費及び水道光熱費は、実績等により改定する場合があります。
※4 連帯保証人は不要です。ただし、公社が指定する家賃保証会社と契約していただきます。
※5 入居期間中は公社が指定する家財(火災)保険に加入していただきます。なお、記載した家財保険料は令和7年10月時点の料金です。実際の保険料は契約時点での金額となりますのでご了承ください。
※6 管理人は常駐しておりません。
※7 敷金、礼金、仲介手数料は不要です。
※8 食事は提供しておりませんが、共用のダイニングキッチンを利用できます。
.
入居期間について
入居期間は卒業年度3月までの定期借家契約となりますが、キャンパスの移動などによる1年の定期借家契約も可能です。契約期間については個々の状況に応じて契約することが可能です。また大学院進学等で契約期間を延長する場合、契約更新手数料は不要です。
.
申込方法について
入居申込書は、所定の事項を記入の上、必要書類を添付し、下記「受付場所・郵送先」に簡易書留※もしくはレターパックまたは持参により提出してください。
※簡易書留の場合は、公社ホームページから「宛名シート」を印刷の上ご利用ください。
| <受付場所・郵送先> 〒990-0041 山形市緑町一丁目9番30号 緑町会館5階 山形県住宅供給公社 まちづくり推進課 TEL:023-679-5255 FAX:023-665-1144 |
.
入居申込書受付期間について
令和7年11月4日(火)から申込み受付を開始します。
ただし、5階5-2号室は、12月19日(金)までの期間中、在学生から申込みがあった場合は申込日の前後を問わず在学生を優先決定します。
<受付時間> 9時00分 ~ 17時00分
土・日、祝祭日、年末年始(令和7年12月27日から令和8年1月4日)は受付しておりません。
※複数物件に申込みすることはできません。
.
提出書類について
入居申込書に加えて、以下を提出してください。
(1)大学等の学生を証明するいずれかの書類の写し
① 合格通知書
② 学生証又は在学証明書
※①を提出の場合、後日②学生証(写し)又は在学証明書(写し)を提出していただきます。
(2)申込者本人及び同居している家族全員の住民票謄本(コピー不可)
※住民票謄本は「続柄」の省略がないものを提出してください。
なお、マイナンバーの記載は不要です(マイナンバーが記載されている場合は
受理できません)。
(3)申込者本人と親の扶養関係がわかる書類(健康保険証等)の写し
(4)申込者本人及び住民票謄本に記載している家族全員の収入を証明する次の書類
① 市区町村役場等で発行される「令和7年度(令和6年分)の所得(課税)証明書」
※高校就学年齢以上の方で収入の無い方でも所得(課税)証明書が必要です。
中学校就学年齢以下の方の提出は不要です。
【令和8年1月5日以降に申込みする場合は、①に加え次の書類】
② 給与所得者は、令和7年分給与所得の源泉徴収票の写し
③ 自営業の方などは、令和8年に提出した確定申告書の写し(申告済みのもの)
※ただし、確定申告の受付開始前に申込む場合は、①のみ提出してください。
(5)同居家族に①、②または③に該当する方がいる場合は、それぞれ下記の書類
ただし、それらが上記の所得(課税)証明書により確認できる場合は不要
① 障害者に該当する場合は、障害者手帳等の写し
② 寡婦又はひとり親世帯に該当する場合は、戸籍全部事項証明書等(戸籍謄本)
③ 年金所得がある場合は、年金額改定通知書等の写し
(6)申込者本人が自らの収入で生活している場合は下記の書類を提出していただきますのでお問い合わせください。
① 申込者本人の収入を証明する書類の写し
② 申込者本人の収入で生活している旨の誓約書
③ 奨学金を受けている場合は、その給付決定通知書の写し
上記の提出書類については返却いたしません。
提出書類に不備があった場合は公社よりご連絡します。提出書類が完備された日が受付日となります。また、指定する期限までに提出がない場合は失格となります。
.
入居者および部屋割りの決定について
(1)入居決定者および補欠者は先着順により入居要件を審査のうえ決定します。
ただし、同日に複数の申込みがあった場合は、抽選により入居決定者および補欠者を決定します。
(2)部屋割りは抽選により決定することとし、希望は承りません。抽選結果が希望に沿わない場合は、入居を辞退することができます。
(3)入居決定者に辞退・失格があった場合は、補欠者に対して公社から繰上げのご連絡をする場合があります。
(4)前記の抽選は、公社内において厳正に行います。申込者の立会いは不要です。
.
入居申込みの結果および契約時期について
入居決定者および補欠者には、郵送により通知します。
また、入居決定者は公社が指定する日まで、重要事項説明を受け、賃貸借契約の締結手続きをしていただきます。なお、重要事項説明を受けられない又は賃貸借契約を締結できない場合、入居の決定を取り消すことがあります。
なお、5階5-2号室は12月19日(金)までは在学生が優先的に決定となり、その場合、申込みから約一ヶ月以内に契約・入居していただきます。
.
家賃低廉化補助について
入居する学生本人及び住民票謄本に記載している家族(収入のある方)全員の所得に基づき計算した世帯収入が、月額15万8千円以下の場合は、別途所定の書類を提出することにより家賃低廉化補助の対象となる場合があります。また、補助の対象となった場合は、家賃支払い額が契約家賃の2分の1となります。
なお、補助を希望する入居者については、改めて令和7年分の所得を証明する書類等を提出していただきます。令和7年分以降の世帯収入の計算算定については国の制度の見直しにより変更になる場合もあります。
詳しくは、山形市のホームページ(https://www.city.yamagata-yamagata.lg.jp/kurashi/tochi/1006582/1007260/1002508.html)をご覧いただくか山形市まちづくり政策部住宅政策課(TEL023-641-1212)までお問い合わせください。
.
例)契約家賃 30,000円 × 1/2 =15,000円(入居者負担額)
※家賃が減額される補助であり、入居者に現金を交付するものではありません。
.
受付場所・問い合わせ先
| 山形県すまい・まちづくり公社 まちづくり推進課 (正式名称:山形県住宅供給公社) 〒990-0041 山形市緑町一丁目9番30号 TEL:023-679-5255 FAX:023-665-1144 |







